Apartment Brunnenhof 1
Lech, Austria![]()
Apartment Brunnenhof 1 is a beautifully furnished apartment with access to shared spa facilities.
Accommodation
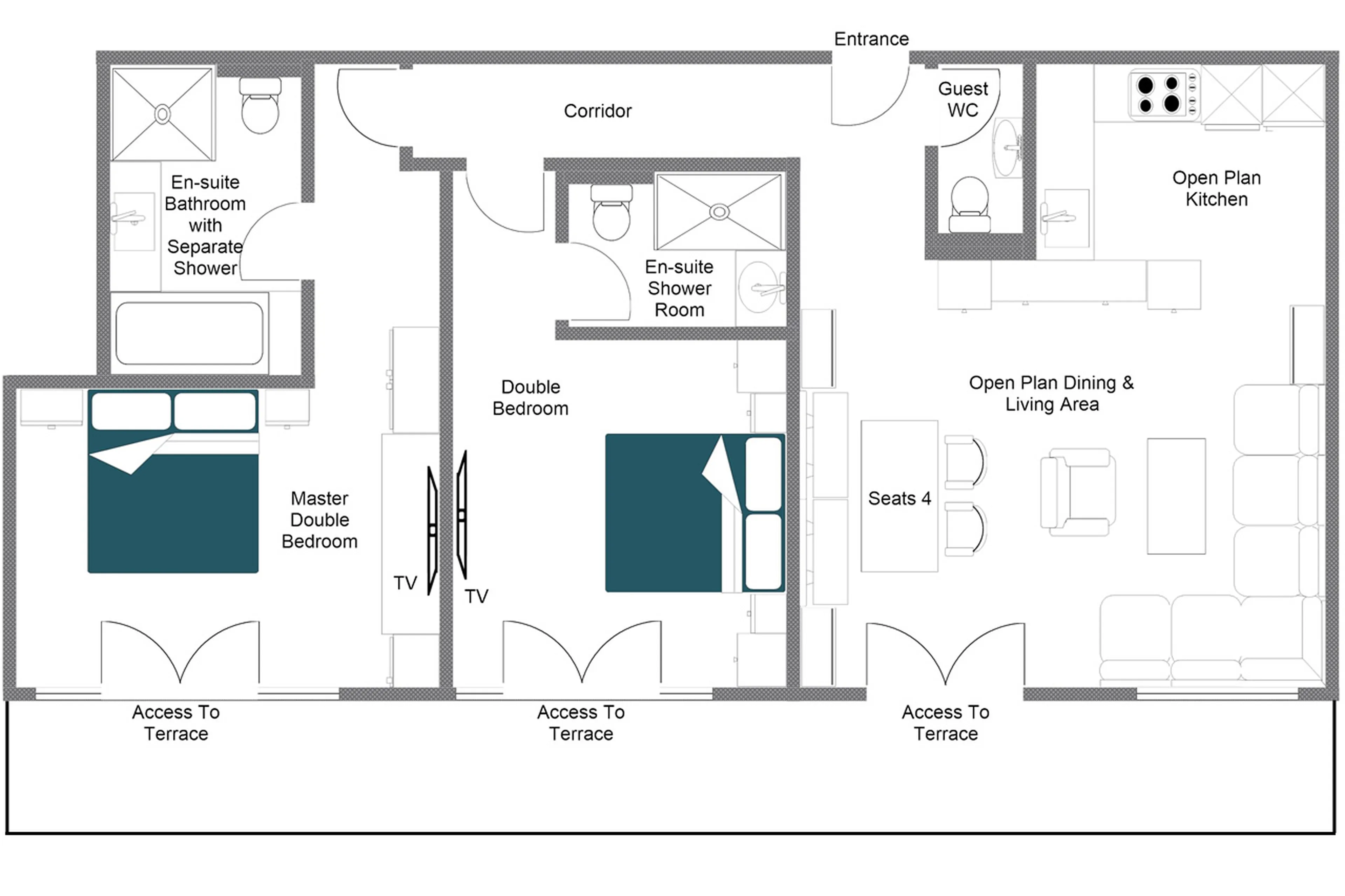
- Capacity:4 Guests
- Bedrooms:2
- Area:87 m2 / 936.47 ft2
Pricing (per week)
- Bed and Breakfast:from EUR 6,340
- Self-Catered:from EUR 4,920
- Accommodation Only:from EUR 4,410
Facilities
- Sauna
- Steam Room
- Swimming Pool
- Integrated sound system
- Ski Locker
- Terrace/Balcony(ies)
- Wi-Fi
Leo Trippi's Highlight
This chic two-bedroom apartment combines convenience and luxury with an open-plan living area and superb shared spa facilities.
Property Tour & Rooms
A short walk from Lech village centre
Apartment Brunnenhof 1 is one of 14 fantastic apartments located in the Brunnenhof residence. This chic two-bedroom apartment is located a 10-minute walk or a three-minute drive from the centre of Lech village. The nearest chairlift is only a six-minute walk from the apartment.
Combining modern furnishings with traditional wooden floors and panelled walls, the apartment boasts a relaxed ambience.
Brunnenhof 1 is home to an open-plan living, dining and kitchen area; and has comfortable seating.
Apartment Brunennhof 1 is able to accommodate a total of four guests across two en-suite bedrooms. The master suite has an en-suite bathroom with separate shower and the second double bedroom has a shower room. There is also a separate WC.
Guests staying in the residence have the added bonus of being able to use the incredible shared spa facilities which include an indoor swimming pool, hammam and sauna.

Every booking with Leo Trippi includes hands on support and guidance from our passionate industry leading team.
Let us guide you every step of the way through your booking at Apartment Brunnenhof 1. From ski instructors to childcare,
the best restaurants and wow moments, we will plan an experience that you’ll remember for ever in Lech.
Location of Apartment Brunnenhof 1
Part of the Brunnenhof Residence, Apartment Brunnenhof 1 offers a prime location for a luxury ski holiday in Lech, with easy access to both the slopes and resort centre. The closest ski lift, the Schlosskopf chairlift, is just a six-minute walk or two-minute drive away, with the Schlegelkopfbahn chairlifts, beginners' slopes, and Rüfikopfbahn gondolas also within easy reach. A ski bus stop directly outside the residence provides convenient transport. The heart of Lech, featuring a variety of bars, restaurants, and shops, is just a 10-minute walk or three-minute drive away.




























-3840.webp)






